產品關鍵字:蝶閥,氣動對夾蝶閥,氣動襯膠蝶閥,襯膠蝶閥,氣動蝶閥,氣動對夾襯膠蝶閥
D671J,D671X,D671J(全襯)氣動對夾襯膠蝶閥在管路中除了起切斷和截流用外,近年來已經把密封性能作為評價的主要指標,受到市場青睞。另外,蝶閥還有體裁積小、重量輕、結構簡單等優點。
蝶閥是用閥桿一起轉動的蝶板作啟閉件,用以實現閥門的開啟、關閉與調節。蝶閥在管路中除了起切斷和截流用外,近年來已經把密封性能作為評價的主要指標,受到市場青睞。另外,蝶閥還有體裁積小、重量輕、結構簡單等優點,與同參數閘閥比較,平均減輕重量達30~50%,蝶板旋轉90度即可實現啟、閉過程,又由于轉軸兩側蝶板受介質作用力近似相等,轉矩相反,因些啟閉力矩較小。
一、產品[氣動對夾襯膠蝶閥]的詳細資料:
產品名稱:氣動對夾襯膠蝶閥
產品特點:設計與制造:GB12238 結構長度:GB12221(20系列) 法蘭連接尺寸:GB4216
二、用途:
|
密封圈材料代號 |
適用溫度 |
適用介質 |
|
NR |
≤85℃ |
水、空氣、酸堿類 |
|
CR |
≤85℃ |
水、煤氣、酸堿類 |
|
NBR |
≤100℃ |
水、油品 |
|
EPDM |
≤120℃ |
水、蒸汽、一般酸堿類 |
|
FKM |
≤150℃ |
水、蒸汽、強酸堿類 |
三、材料:
|
閥體 |
鑄鐵、球墨鑄鐵、碳鋼、不銹鋼 |
|
蝶板 |
鑄鐵、球墨鑄鐵、碳鋼、不銹鋼、碳鋼完全包覆橡膠或氟塑料 |
|
閥桿 |
碳鋼鍍鎳磷、不銹鋼 |
|
閥座密封圈 |
天然膠NR、氯丁膠CR、丁腈膠NBR、三元乙丙膠EPDM、氟橡膠FKM |
|
氣動裝置 |
組合件 |
壓力等級:PN(MPa) 1.0 1.6
四、測試:
襯里層:電火花檢測
試驗與檢驗按GB/T13927標準
公稱壓力:PN(MPa)
閥體:PN×1.5
密封:PN×1.1
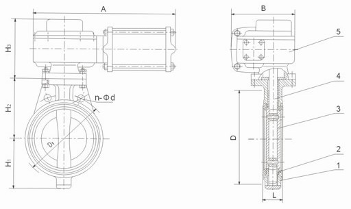
部件列表:1、閥體 2、閥座 3、蝶板 4、閥桿 5、氣動裝置

中國.上玉集團有限公司是專業生產襯膠閥門的廠家,氣動對夾襯膠蝶閥訂貨須知:
一、①氣動對夾襯膠蝶閥產品名稱與型號②氣動對夾襯膠蝶閥口徑③氣動對夾襯膠蝶閥是否帶附件以便我們的為您正確選型。
二、若已經由設計單位選定的氣動對夾襯膠蝶閥型號,請按氣動對夾襯膠蝶閥型號直接向我公司銷售部訂購。
三、當使用的場合非常重要或環境比較復雜時,請您盡量提供設計圖紙和詳細參數,由我們上玉集團的專家為您審核把關。
感謝您訪問上玉集團公司網站,如有任何疑問您可以撥打我們的全國熱線電話:400-887-6587,我們一定會盡心盡力為您提供優質的服務。
|
公稱通徑DN |
公稱壓力MPa |
工作壓力MPs |
L |
D |
D1 |
n-Φd |
H1 |
H2 |
氣動裝置 |
氣源接頭 |
質量 | |||
|
型號 |
A |
B |
H3 | |||||||||||
|
40 |
1.0 |
1.0 |
33 |
150 |
110 |
4-18 |
- | - | - | - | - | - | - | - |
|
0 |
43 |
165 |
125 |
4-18 |
64 |
120 |
6D3A |
210 |
70 |
120 |
M10×1 |
5.5 | ||
|
65 |
46 |
185 |
145 |
4-18 |
80 |
120 |
6D3A |
210 |
70 |
120 |
M10×1 |
8 | ||
|
80 |
46 |
200 |
160 |
8-18 |
112 |
130 |
6D8 |
240 |
183 |
183 |
M10×1 |
11 | ||
|
100 |
52 |
220 |
180 |
8-18 |
90 |
145 |
6D8 |
240 |
183 |
183 |
M10×1 |
12 | ||
|
125 |
56 |
250 |
210 |
8-18 |
112 |
160 |
6D20 |
480 |
203 |
200 |
M10×1 |
37.5 | ||
|
150 |
56 |
285 |
240 |
8-22 |
132 |
175 |
6D20 |
480 |
203 |
200 |
M10×1 |
39.5 | ||
|
200 |
60 |
340 |
295 |
8-22 |
160 |
210 |
6D40 |
480 |
215 |
200 |
M10×1 |
49 | ||
|
250 |
68 |
395 |
350 |
12-22 |
206 |
235 |
6D60 |
480 |
228 |
200 |
M10×1 |
68 | ||
|
300 |
78 |
445 |
400 |
12-22 |
232 |
273 |
6D90 |
578 |
305 |
265 |
M10×1 |
99 | ||
|
350 |
78 |
505 |
460 |
16-22 |
263 |
310 |
6D130 |
612 |
318 |
268 |
M10×1 |
119 | ||
|
400 |
102 |
565 |
515 |
20-26 |
295 |
340 |
6D160 |
685 |
370 |
310 |
M12×1.5 |
182 | ||
|
450 |
114 |
615 |
565 |
20-26 |
327 |
370 |
6D300 |
1070 |
399 |
296 |
M12×1.5 |
258 | ||
|
500 |
127 |
670 |
620 |
20-26 |
358 |
399 |
6D300 |
1070 |
399 |
296 |
M12×1.5 |
297 | ||
|
550 |
140 |
730 |
675 |
20-30 |
384 |
430 |
6D500 |
1070 |
409 |
296 |
M12×1.5 |
325 | ||
|
600 |
154 |
780 |
725 |
20-30 |
474 |
460 |
6D500 |
1070 |
409 |
296 |
M12×1.5 |
399 | ||
|
700 |
165 |
895 |
840 |
24-30 |
- | - | - | - | - | - | - | - | ||
|
800 |
190 |
1015 |
950 |
24-33 |
- | - | - | - | - | - | - | - | ||
|
900 |
203 |
1115 |
1050 |
28-33 |
- | - | - | - | - | - | - | - | ||
|
1000 |
216 |
1230 |
1160 |
28-36 |
- | - | - | - | - | - | - | - | ||
| 可能發生的故障 | 原因 | 消除方法 |
| 密封面泄露 | 1、蝶板、密封面夾有雜物 2、蝶板、密封面關閉位置吻合不正 3、出口側配置裝法蘭螺栓受力不均或未按圖一要求 4、試壓方向未按圖一要求 |
1、消除雜質,清洗閥門內腔 2、調整蝸輪或電動執行機構的調節螺釘,以達閥門關閉位置正確 3、檢查配裝法蘭平面及螺栓壓緊國,應均勻壓緊 4、按尖頭密封方向進行施壓 |
| 閥門兩端面泄露 | 1、兩側密封墊片失效 2、管法蘭緊力不均或未壓緊 3、密封圈上、下封墊片失效 |
1、更換密封墊片 2、壓緊法蘭螺栓(均勻受力) 3、卸下閥門的壓圈,更換密封圈,失效墊片 |
2022-11-7
襯氟閥門和襯膠閥門有哪些區別(都是什么材質的)2012-3-21
上玉襯膠閥門襯氟閥門-三十年的發展與輝煌2012-3-19
襯膠閥門與襯氟閥門的選型與訂購時的注意事項2012-3-8
襯膠閥門中襯膠隔膜閥的日常保養維護及維修的注意事項2012-2-28
襯膠閥門與襯氟閥門的市場現狀分析2012-2-21
襯膠閥門的主要襯里材料2012-2-15
上玉集團襯膠閥門、襯氟閥門(隔膜閥)產品2012-1-3
襯膠閥門與襯氟閥門的區別